Floor Plan Porn: Steve Cohen in New York City
By
Unknown
—
Selasa, 09 April 2013
—
Add Comment
SELLER: Steve Cohen
LOCATION: New York City, NY
PRICE: $115,000,000
SIZE: 9,000 square feet, 4 bedrooms, 5.5 bathrooms (plus 2 bedroom and 1 bathrooms staff suite)
YOUR MAMAS NOTES: Last week Your Mama briefly discussed the art buying real estate doings of legally embattled billionaire financier Steve Cohen (last item) who just forked over $60,000,000 to buy a 6.5 acre ocean front spread in East Hampton (NY) that happens to be located just a couple doors down from the non-beach front house he already owns.
In our uncharacteristically brief discussion we repeated the much reported upper end celebrity real estate scuttlebutt about the multi-billionaire and his second wife Alexandra quietly shopping his duplex penthouse in Manhattan off market with an electrifying (and publicity ensuring) $115 million price tag.
Mister and Missus Cohen—who combined have seven children, four together, two from his previous marriage and one from hers—purchased the unusually spacious penthouse in 2005 for around $24,000,000. They engaged the no doubt hideously expensive services of now-deceased super-starchitect Charles Gwathmey who transformed the nearly 9,000 square foot glass-wrapped aerie into a sleek machine for urban living high atop the Bloomberg Tower/One Beacon Court building, one of Midtown Manhattan's most dynamic and expensive mixed-use towers.
The floor plan include with current listing details shows Mister and Missus Cohen's dazzling penthouse has a foyer the size of a corporate reception area that leads directly into a vast, 45-foot long combination living and dining room wrapped in floor-to-ceiling windows filled with the exact sort of panoramic city views that urban real estate dreams are sometimes woven. There's a built-in buffet in the dining area, a 24-foot double height ceiling over the living room area and a wavy wall behind which Mister Gwathmey tucked an unusually large two-room powder pooper with a circular throne room. We have no idea what the man-statue is doing in the corner but we can all assume it cost Mister and Missus Cohen more than Your Mama's BMW and its shadow would scare the tarnation right out of us on a boozy, woozy and dimly lit night.
Just off the main entrance Mister Gwathmey installed a two-room office suite with built-in desk and cabinetry and a separate, paneled reception room/lounge with full wet bar (sink, fridge, ice maker and wine fridge).
More casual, family quarters include a media room with over-sized t.v. set into a custom entertainment center and a colossal eat-in kitchen with breathtaking corner dining area and an almost entirely stainless steel center island kitchen with extra-thick slab stone counter tops. The refrigerators and freezers are located in a vestibule just off the kitchen where there's also a walk-in pantry that makes Your Mama swoon with envy.
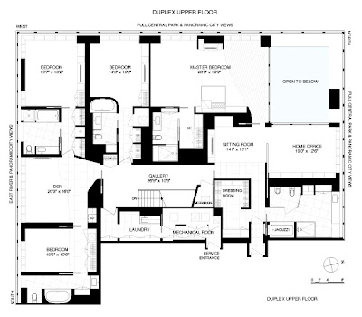
Official online marketing materials show the penthouse has a total of six bedrooms and 6.5 bathrooms, including the two bedrooms and one bathroom in the staff wing tucked up behind the media room on the lower level. A private guest wing on the upper level has a private den, a dry bar, two bedrooms, two bathrooms, loads of closet space and at least two televisions. A third guest bedroom with private bathroom (and television) opens off the upper level gallery as does the laundry room and the expansive master suite that includes a private sitting room (with t.v.), home office (with t.v. and wall of windows that overlooks the double height living room below), 28-plus foot bedroom (with yet another t.v.), two fitted closets and dressing rooms and a pair of bathrooms slathered in slabs of richly veined white statuary marble.
There is not, as far as we can see or surmise from listing details, even an inch of outdoor space.
Monthly maintenance and taxes ring up to a stomach churning $24,783, according to current listing information. That means Mister and Missus Cohen cough up $297,396 a year for their mansion-sized Manhattan penthouse pied-a-terre not counting maid service, repairs, upgrades and etc., an amount Your Mama's bejeweled abacus determined would take a New York State minimum wage worker a bit more than 1,025 weeks (or nearly 20 years) to earn.
In addition to his no-longer-wanted duplex penthouse atop One Beacon Court and his two houses in East Hampton, Mister Cohen's residential property portfolio bulges with an 8-story townhouse in the West Village he picked up last year for $38,000,000 and a self-contained, 17-plus acre compound-estate in Greenwich, CT with a multi-winged 35,000-plus square foot red brick Georgian mega-mansion, guard house, extensive formal gardens, a tennis court, private golf green, a monolithic Richard Serra sculpture next to the motor court. Property records show Mister and Missus Cohen also own the 4.5 acre spread next door that they bought in June 2006 for $5,000,000 and subsequently built a brand new residence with seven bedrooms and seven bathrooms in just over 7,900 square feet. We have no idea why Mister and Missus Cohen would need another 8,000 square foot house right next to their already gargantuan 35,000-plus square foot mansion, but such are the sometimes inexplicable real estate ways of the super rich, right?
listing photos and floor plan: Corcoran
LOCATION: New York City, NY
PRICE: $115,000,000
SIZE: 9,000 square feet, 4 bedrooms, 5.5 bathrooms (plus 2 bedroom and 1 bathrooms staff suite)
YOUR MAMAS NOTES: Last week Your Mama briefly discussed the art buying real estate doings of legally embattled billionaire financier Steve Cohen (last item) who just forked over $60,000,000 to buy a 6.5 acre ocean front spread in East Hampton (NY) that happens to be located just a couple doors down from the non-beach front house he already owns.
In our uncharacteristically brief discussion we repeated the much reported upper end celebrity real estate scuttlebutt about the multi-billionaire and his second wife Alexandra quietly shopping his duplex penthouse in Manhattan off market with an electrifying (and publicity ensuring) $115 million price tag.
Mister and Missus Cohen—who combined have seven children, four together, two from his previous marriage and one from hers—purchased the unusually spacious penthouse in 2005 for around $24,000,000. They engaged the no doubt hideously expensive services of now-deceased super-starchitect Charles Gwathmey who transformed the nearly 9,000 square foot glass-wrapped aerie into a sleek machine for urban living high atop the Bloomberg Tower/One Beacon Court building, one of Midtown Manhattan's most dynamic and expensive mixed-use towers.
The floor plan include with current listing details shows Mister and Missus Cohen's dazzling penthouse has a foyer the size of a corporate reception area that leads directly into a vast, 45-foot long combination living and dining room wrapped in floor-to-ceiling windows filled with the exact sort of panoramic city views that urban real estate dreams are sometimes woven. There's a built-in buffet in the dining area, a 24-foot double height ceiling over the living room area and a wavy wall behind which Mister Gwathmey tucked an unusually large two-room powder pooper with a circular throne room. We have no idea what the man-statue is doing in the corner but we can all assume it cost Mister and Missus Cohen more than Your Mama's BMW and its shadow would scare the tarnation right out of us on a boozy, woozy and dimly lit night.
Just off the main entrance Mister Gwathmey installed a two-room office suite with built-in desk and cabinetry and a separate, paneled reception room/lounge with full wet bar (sink, fridge, ice maker and wine fridge).
More casual, family quarters include a media room with over-sized t.v. set into a custom entertainment center and a colossal eat-in kitchen with breathtaking corner dining area and an almost entirely stainless steel center island kitchen with extra-thick slab stone counter tops. The refrigerators and freezers are located in a vestibule just off the kitchen where there's also a walk-in pantry that makes Your Mama swoon with envy.
Official online marketing materials show the penthouse has a total of six bedrooms and 6.5 bathrooms, including the two bedrooms and one bathroom in the staff wing tucked up behind the media room on the lower level. A private guest wing on the upper level has a private den, a dry bar, two bedrooms, two bathrooms, loads of closet space and at least two televisions. A third guest bedroom with private bathroom (and television) opens off the upper level gallery as does the laundry room and the expansive master suite that includes a private sitting room (with t.v.), home office (with t.v. and wall of windows that overlooks the double height living room below), 28-plus foot bedroom (with yet another t.v.), two fitted closets and dressing rooms and a pair of bathrooms slathered in slabs of richly veined white statuary marble.
There is not, as far as we can see or surmise from listing details, even an inch of outdoor space.
Monthly maintenance and taxes ring up to a stomach churning $24,783, according to current listing information. That means Mister and Missus Cohen cough up $297,396 a year for their mansion-sized Manhattan penthouse pied-a-terre not counting maid service, repairs, upgrades and etc., an amount Your Mama's bejeweled abacus determined would take a New York State minimum wage worker a bit more than 1,025 weeks (or nearly 20 years) to earn.
In addition to his no-longer-wanted duplex penthouse atop One Beacon Court and his two houses in East Hampton, Mister Cohen's residential property portfolio bulges with an 8-story townhouse in the West Village he picked up last year for $38,000,000 and a self-contained, 17-plus acre compound-estate in Greenwich, CT with a multi-winged 35,000-plus square foot red brick Georgian mega-mansion, guard house, extensive formal gardens, a tennis court, private golf green, a monolithic Richard Serra sculpture next to the motor court. Property records show Mister and Missus Cohen also own the 4.5 acre spread next door that they bought in June 2006 for $5,000,000 and subsequently built a brand new residence with seven bedrooms and seven bathrooms in just over 7,900 square feet. We have no idea why Mister and Missus Cohen would need another 8,000 square foot house right next to their already gargantuan 35,000-plus square foot mansion, but such are the sometimes inexplicable real estate ways of the super rich, right?
listing photos and floor plan: Corcoran






0 Response to "Floor Plan Porn: Steve Cohen in New York City"